Rancho Palos Verdes, CA
1.3 Prime Acres
3239 Palos Verdes Dr. S. is more than just a parcel of land – it’s a future showpiece. Whether you're a custom home builder or a luxury spec developer, this site offers the ideal setting for a signature residence. With expired plans once approved by the City of Rancho Palos Verdes, the groundwork has already been laid – and local precedence gives your future application a solid footing. Bring your architect and vision, and take advantage of a rare offering.Reach out and I can put you in touch with the prevoious architect to go over what it takes to get these plans back on track.
Positioned at the nexus of convenience and coastal beauty, this location places you mere minutes from renowned destinations such as Trump National Golf Club for a premier day on the fairways, the world-class Terranea Resort for oceanfront dining and spa indulgences, and some of Southern California’s most picturesque beaches like Royal Palms and White Point. Enrich your leisure time at the nearby Ocean Trails Reserve, explore family-friendly weekend outings at the scenic Point Vicente Lighthouse, and enjoy easy commutes via the nearby 110 and 710 freeways only 15 minutes away. Families will also appreciate being a short drive from the highly rated Mira Catalina Elementary School.





















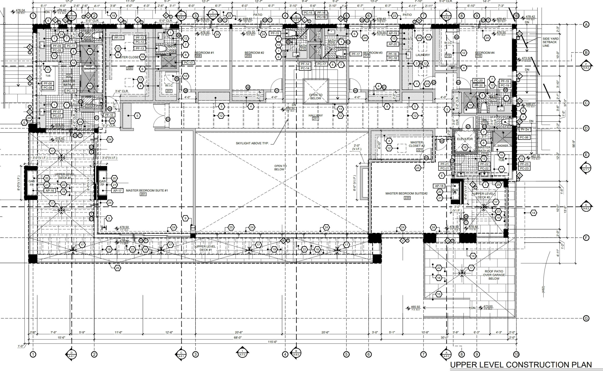
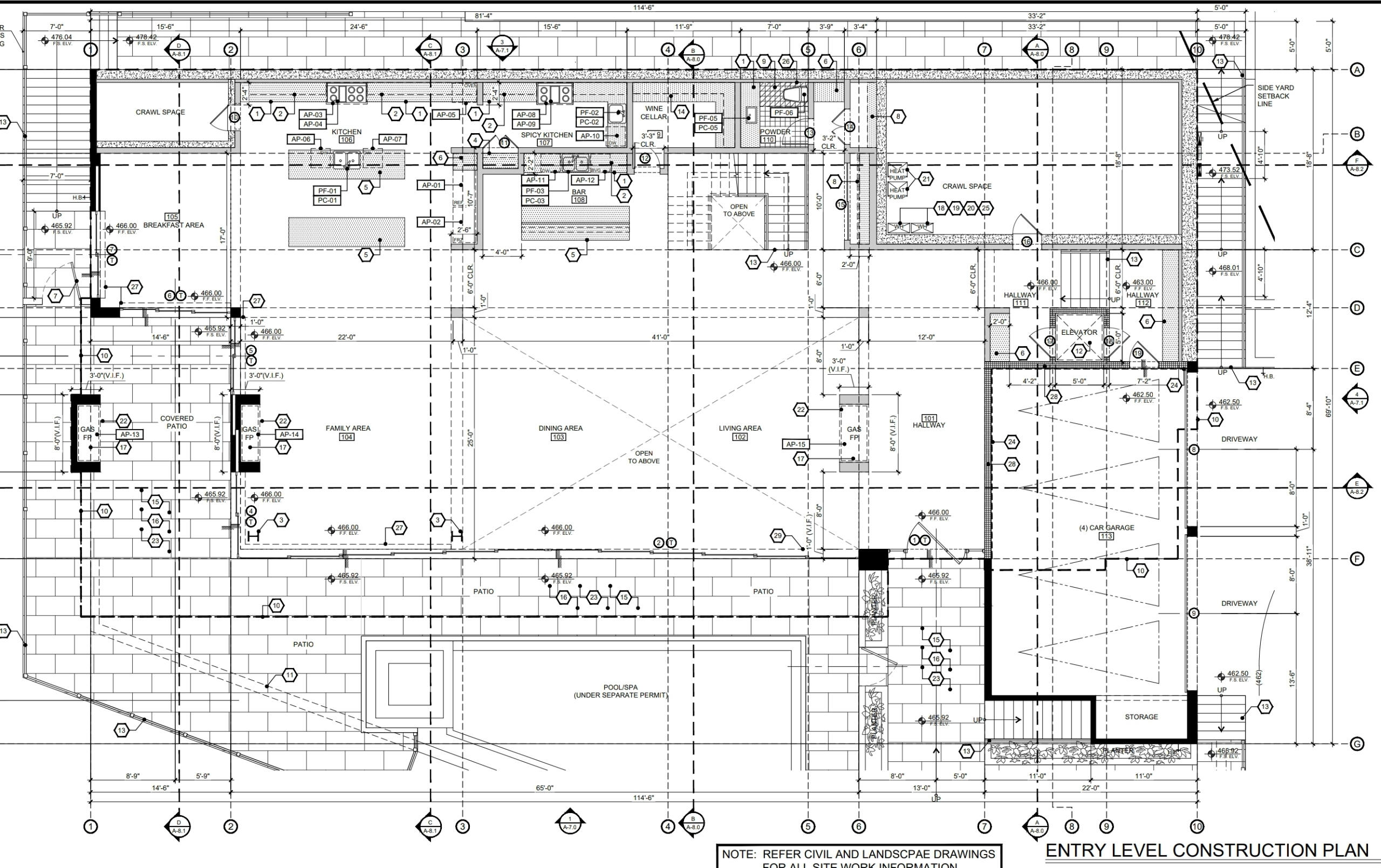
*Expired plans once approved by the City of Rancho Palos Verdes
Designed Features:
6 bed / 7 bath
7831 ft² Living Area
732 ft² Attached 4 Car Garage
Professional Kitchen
Infinity Edge Pool & Spa
Expansive Skylights
6 Fire Places (4 in and 2 outdoor)
Elevator








